Szukasz przestronnego domu w zielonej i spokojnej dzielnicy Katowic?
Poznaj wyjątkową ofertę domu w zabudowie szeregowej położonego przy ul. Bałtyckiej w Katowicach-Panewnikach – jednej z najbardziej pożądanych lokalizacji w mieście.
Lokalizacja
Panewniki to dzielnica słynąca z bliskości natury i dostępu do Lasów Panewnickich – największego kompleksu leśnego w Katowicach, rozciągającego się aż po Rudę Śląską i Mikołów.
To idealne miejsce dla osób, które cenią ciszę, zieleń i możliwość aktywnego wypoczynku na świeżym powietrzu, nie rezygnując z dobrego połączenia z centrum miasta.
W kilka minut można dotrzeć do autostrady A4, co zapewnia szybki dojazd do Katowic, Mikołowa i Gliwic.
Nieruchomość
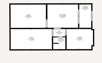
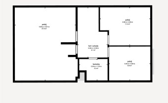
Dom o powierzchni całkowitej 144,5 m² (pow. użytkowa 115,25 m²) to środkowy segment w zabudowie szeregowej z 1981 roku, posadowiony na działce o regularnym, prostokątnym kształcie.
Nieruchomość wymaga generalnego remontu, ale ma ogromny potencjał aranżacyjny – zarówno dla rodziny z dziećmi, jak i dla osób poszukujących inwestycji pod wynajem.
Rozkład pomieszczeń
Ogrzewanie gazowe – kocioł dwufunkcyjny, okna PCV, budynek docieplony styropianem.
Stan techniczny umożliwia natychmiastowe rozpoczęcie prac remontowych według własnego projektu.
Dlaczego warto?



